Idealno zoniran prostor: dnevni
Idealno zoniran prostor: dnevni boravak u prizemlju, miran spavaći blok u potkrovlju

Površina
140m²
Spavaće sobe
3
Kupatila
2 (1 kupatilo na spratu + 1 WC u prizemlju)
Spratnost
Prizemlje + Potkrovlje (Sprat)
Energetska klasa
B+
Tražite projekte kuća na sprat? Pogledajte plan moderne kuće sa potkrovljem u Velikom Orašju (140m²). Sadrži 3 spavaće sobe, open-space dnevni boravak i 2 opcije fasade.
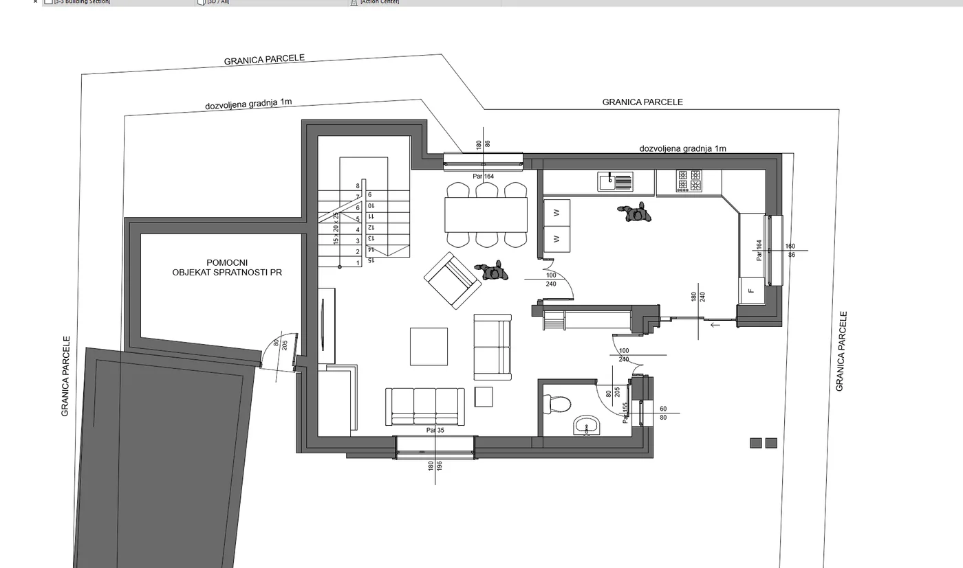
Kada posmatramo najtraženije projekte kuća, jasno je da mnoge porodice preferiraju klasičnu podelu prostora na više nivoa. Naš novi projekat moderne porodične kuće u Velikom Orašju predstavlja vrhunski primer kuće na sprat (prizemlje + potkrovlje), ukupne površine 140m².
Sa savršeno izbalansiranim odnosom između kvadrature i funkcionalnosti, ovaj objekat se idealno uklapa u kategoriju kuća do 150m2, pružajući maksimalan komfor bez nepotrebnog rasipanja prostora.
Za razliku od prizemnih kuća, projekti kuća sa potkrovljem omogućavaju striktno odvajanje dnevnog i noćnog bloka – nešto što je posebno važno za višečlane porodice.
Svesni smo da svaki klijent ima jedinstven ukus, zbog čega smo za ovaj projekat pripremili dva različita dizajna eksterijera:
Ukoliko vas privlače ovakvi planovi kuća, verovatno se pitate kolika je cena projekta za kuću i koji su koraci do građevinske dozvole. Cena projektovanja zavisi od specifičnih uslova vaše parcele i toga da li želite dodatne izmene (na primer, odabir jedne od dve varijante fasade).
Sve detalje o tome kako formiramo ponudu i kolika je cena projekta kuće po kvadratu možete pročitati na našem blogu.
Pre nego što krenete u gradnju, korisno je istražiti različite planove kuća i steći uvid u mogućnosti. Pripremili smo detaljan vodič o tome gde možete pronaći inspiraciju i na šta da obratite pažnju pri odabiru projekta: Saznajte sve o besplatnim projektima kuća.
Da li vam se dopada ovaj projekat u Velikom Orašju? Kontaktirajte naš biro i zakažite konsultacije kako bismo ga prilagodili vašoj parceli i potrebama!
Pogledajte i naše ostale projekte na stranici Projekti kuća, a ukoliko preferirate život na jednom nivou, istražite našu ponudu za prizemne kuće ili pročitajte naš tekst o projektima kuća do 100m2.
Idealno zoniran prostor: dnevni boravak u prizemlju, miran spavaći blok u potkrovlju
Open-space prizemlje (70m²) sa komfornom dnevnom sobom, trpezarijom i modernom kuhinjom
Tri prostrane spavaće sobe u potkrovlju (70m²), savršene za višečlane porodice
Dve opcije eksterijera: dominantna fasadna opeka ili kombinacija opeke i bele fasade
Početna vizija projekta sa osnovnim crtežima
Svaki projekat je jedinstven — cene se formiraju prema vašim potrebama, veličini projekta i nivou personalizacije.
⏱️Odgovaramo u roku 24h

Projekat moderne kuće sa podzemnom garažom od 235m

Projekat luksuzne kuće sa bazenom od 180m² u Parać

Tražite projekti kuća do 100m2? Pogledajte plan mo

Projekat moderne kuće sa drvenim elementima od 200

Projekat moderne kuće na sprat sa garažom u Beogra

Projekat moderne prizemne kuće od 200m² sa garažom
Kontaktirajte nas danas za besplatnu konsultaciju i saznajte kako možemo pretvoriti vaše snove u stvarnost.
Najpopularnija veličina kuće u Srbiji! Projekti kuća do 120m2 sa 3-4 sobe. Prizemne i spratne. Gotovi planovi od 9€/m². Pogledajte naš katalog.
Pročitajte više →projekti kuća do 100m2Projekti kuća do 100m² od 1.200€. Prizemne i moderne varijante sa 2-3 sobe. Pogledajte gotove planove kuća, rasporede prostorija i cene gradnje u Srbiji.
Pročitajte više →uređenje domaSaznajte kako da sredite vaš projekat kuće, od organizacije prostora i odabira boja do praktičnih saveta za funkcionalan i lep dom. Cad Art nudi stručne savete za projektovanje kuća.
Pročitajte više →